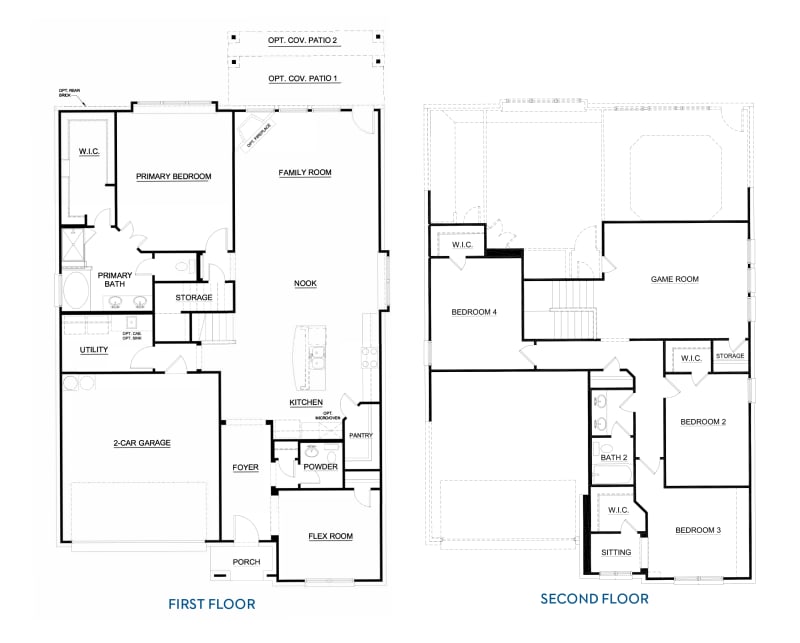
Discover this stunning two-story home in Weatherford, TX, offering 5 bedrooms, 3 bathrooms, and 2,900 square feet of thoughtfully designed living space. The main level features an open-concept layout with a spacious family room, modern kitchen with electric range, island, and stylish backsplash, along with a dining nook that opens to an optional covered patio. The private master suite includes a large walk-in closet and elegant bath with dual vanities, soaking tub, and walk-in shower. An additional bedroom and full bath are also located downstairs. Upstairs, you’ll find a generous game room, three more bedrooms—most with walk-in closets—a Jack-and-Jill bath, and a cozy sitting area. With upgraded flooring options throughout and tile in all bathrooms, this home offers both comfort and convenience in a sought-after Weatherford neighborhood close to schools, shopping, and more.
Quick Move-In Home
Concept 2870 – 520 Waterford Park Boulevard
Waterford Park
520 Waterford Park Boulevard, Weatherford, TX 76087
Fall Move-In
Request Info
If you have questions, would like a brochure, or to schedule a visit, please complete the form and our sales team will contact your shortly.
By providing your information, you agree to our Privacy Policy and you agree to receive recurring messages from Landsea Homes. Text “HELP” for help. Reply “STOP” to opt out. Message frequency varies. Message and data rates may apply. Carriers are not liable for delayed or undelivered messages. Please see terms and conditions on website. This site is protected by reCAPTCHA and the Google Privacy Policy and Terms of Service apply.