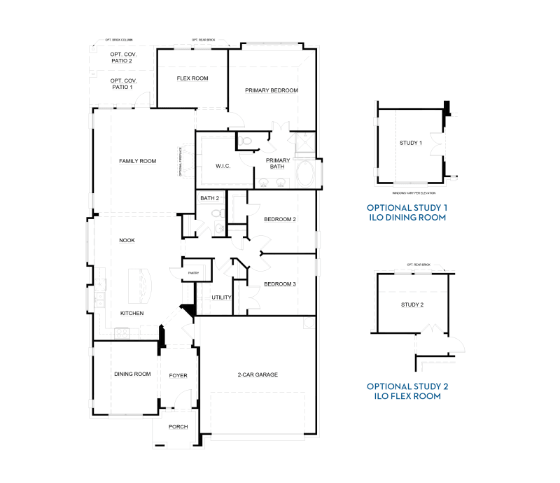
This spacious single-story home in the Waterford Park community of Weatherford, TX offers 3 bedrooms, 2 bathrooms, and 2,100 square feet of thoughtfully designed living space. The open-concept floor plan connects the kitchen, nook, and family room, creating a warm and functional area perfect for daily living and entertaining. The kitchen is equipped with an electric range, upgraded cabinetry, and backsplash details, with a large island that provides additional prep and seating space. The master suite includes a generous walk-in closet and a luxurious bath with an upgraded shower tile pan. Two additional bedrooms share a full bath, while two flexible studies provide the option for a home office, media room, or dining space. Additional features include a foyer entry, utility room, and a 2-car garage, with the option to extend living outdoors on the covered patio. With upgraded flooring, stone accents, and modern finishes, this home balances style, comfort, and versatility in a sought-after community.
Quick Move-In Home
Concept 2065 – 517 Waterford Park Boulevard
Waterford Park
517 Waterford Park Boulevard, Weatherford, TX 76087
Fall Move-In
Request Info
If you have questions, would like a brochure, or to schedule a visit, please complete the form and our sales team will contact your shortly.
By providing your information, you agree to our Privacy Policy and you agree to receive recurring messages from Landsea Homes. Text “HELP” for help. Reply “STOP” to opt out. Message frequency varies. Message and data rates may apply. Carriers are not liable for delayed or undelivered messages. Please see terms and conditions on website. This site is protected by reCAPTCHA and the Google Privacy Policy and Terms of Service apply.