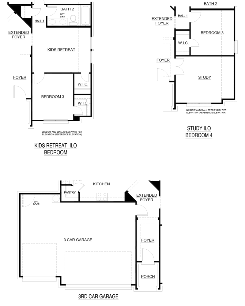
This beautiful single-story home in Weatherford, Texas offers 3 bedrooms, 2 bathrooms, and 1,937 square feet of thoughtfully designed living space. The open-concept layout seamlessly connects the kitchen, nook, and family room, creating a perfect space for entertaining or everyday living. The modern kitchen features an electric range, upgraded cabinetry, and a stylish backsplash, while the family room opens onto an optional covered patio, extending the living space outdoors. The private master suite includes a spacious walk-in closet and a luxurious bath with an upgraded shower tile pan. Two additional bedrooms share a full bath and are complemented by a flexible kids retreat area, ideal for play, study, or media. Additional highlights include a dedicated utility room, extended foyer, and direct access to a 2-car garage. With upgraded flooring, modern finishes, and smart design details, this home combines comfort, style, and functionality in the desirable Waterford Park community.
Quick Move-In Home
Concept 1937 – 541 Waterford Park Boulevard
Waterford Park
541 Waterford Park Boulevard, Weatherford, TX 76087
Fall Move-In
Request Info
If you have questions, would like a brochure, or to schedule a visit, please complete the form and our sales team will contact your shortly.
By providing your information, you agree to our Privacy Policy and you agree to receive recurring messages from Landsea Homes. Text “HELP” for help. Reply “STOP” to opt out. Message frequency varies. Message and data rates may apply. Carriers are not liable for delayed or undelivered messages. Please see terms and conditions on website. This site is protected by reCAPTCHA and the Google Privacy Policy and Terms of Service apply.